PROJECT NAME: PUROTU - holiday home
CLIENT: Withheld
TYPE: New holiday home – Bach
SIZE: Total site area 4611 m2, Interior floor area 165 m2, deck – terrace area over 180 m2, covered outdoor area 52 m2 and under Bach storage area 125 m2.
LOCATION: Marlborough Sounds – Bay of Many Coves (Miritu Bay), New Zealand
AUTHOR OF THE PROJECT: Davor Mikulcic
STRUCTURAL ENGINEER: Meyers & Associates Ltd.
PROJECT TEAM: Michael Maddern and Davor Mikulcic
STATUS: Project completed
Design & Documentation period: July 2010 – April 2011 Construction period: April 2011 – July 2012 Photographs: Ivor Earp - Jones
Main Contractor: Tory Channel Contracting Ltd (Mr. Sam Edwards with his team) Project management: By Client Building structure: Foundation timber piles and concrete slab with structural steel and timber Stainless Steel manufacturer/installer: Metric Sheetmetals Ltd - Seaview in Wellington Aluminium Joinery: Tasman Glass - Nelson Roofing & metal wall cladding supply: Steel & Tube New Zealand (Christchurch) Roofing & metal wall cladding installation: Tory Channel Contracting Ltd (Mr. Sam Edwards with his team) Joinery/cabinetry: Cantwell Joinery Ltd, from Blenheim
Main material finishes:
-Foundation is partially Concrete/timber piles and at back reinforced concrete slab with 1 m high concrete block reinforced retaining wall.
-innovative sewer treatment under ESD principles with under house septic tank
-kitchen, bathroom, laundry, toilet cabinetry all in marine plywood finish
-roofing and metal wall cladding is Steel & Tube product Paneldeck – Coloursteel Max 0.55 mm in Thunder grey color, by New Zealand Steel.
-partially timber exterior wall cladding is vertical cedar cladding with dark brown oil stain and stainless steel exposed nails fixing.
-interior walls and ceilings generally completed in plasterboard with high quality spray paint finish
- exterior aluminium joinery with double glazing is by Fletcher Aluminium - Pacific Residential suite and for the best
thermal performances we specified double glazing with exterior Viridian grey tinted glass.
-exterior decking is hardwood Kwila boards 18x90 mm
-eaves are Villaboard panels by James Hardie, plastered and painted
- Main floor structure is combination of steel and timber with final Tasmanian Oak 19 mm final flooring over 20 mm plywood substrate and thermal insulation under.
- Exterior and interior walls are predominantly combination of timber and steel structure
PUROTU – “Beautiful” – Bach (holiday home) in New Zealand's Marlborough Sounds at Bay of Many Coves Quite often at the start of the Design process, after we have had a chance to talk to the client and experience the site for the first time, you ask yourself should we do anything to the existing site, or should the beautiful natural environment remain as it is?
At the Bay of Many Coves, one of the many Marlborough Sound jewels, our clients, when they introduced us to the Project, already had on the site quite an old cottage which was not in very good condition. Overall the site actually combines two individual lots with total area of 4611 m2, with the building platform elevated about 10 meters above the sea level, at the lower level of the hilly site. The lovely positioned cottage was a single storied two bedroom building with a simple weatherboard finish and pitched Colorsteel roof, the dwelling was nicely nestled into the surrounding native bush. The client very much loved it and it was quite a difficult decision we together did to actually remove it from the site and design something new in its place. While it was emotionally a difficult decision it was a logical, more sustainable and cost effective solution, particularly with the knowledge of the remoteness of the site and the logistical requirements of any long term maintenance. Picton and Blenheim are the closest towns and the only practical way to reach the site is actually by boat, barge or by helicopter. Weather permitting it takes about 45 minutes to reach site via boat. So logistically this was obviously one of the main constraints on this project.
Our Wellington and Brisbane studios tradition is at the start of every project to actually spend some time together with the clients and if possible, to do so on the future site. There are many reasons for this and included is to help us better understand the client’s needs, wants, preferences, requirements, any special spots and views and to visualize and experience the site's constraints including access, orientation, context, services, topography and vegetation and any obstructions, or in simple wording the pluses and minuses we have to work with. Design team had the amazing experience of spending one weekend with our clients on the future site in the old cottage and by talking, walking, eating, drinking, fishing, photographing, sketching, measuring we tried to live as the clients do to be as familiar as much possible with the site and to try and understand our clients brief which we together developed even further.
We officially started the Project in July 2010 (Architect Agreement signed), but we started extensive collaboration and preparation, probably few months before that, fine tuning and developing the brief and created a strategy on how to work on this project. The clients brief was relatively simple incorporating : open plan kitchen, dining, living area with fireplace (wood burner), 3 double bedrooms, all with a good orientation and view, separate studio – office area, laundry-changing room after diving with exterior shower, main complete bathroom and a separate toilet. The outdoor space had to be very functional and needed to incorporate the existing spa while this needed to be strategically positioned to capture the view while remaining private, an outdoor shower in the same space was also a requirement. As is a standard requirement in all bach's the provision of extensive decking with outdoor seating all around the dwelling and the ability for the BBQ to be used in a variety of locations depending on the need. Descent storage underneath the front part of the building with simple access was another desire.
From the first initial sketches we did with our clients during our first site visit, it was obvious that we all had the same goal – to nicely settle the building in the existing environment, without competing or contrasting with the surroundings but to simply blend it into the natural environment.
After we decided together with the clients through careful analysis that the existing cottage should be removed from the site we did quite a bit exploration for the possible alternative positions for the future project, confirming that the current position of the existing cottage was the best. We rotated the new building to capture an even better orientation and view; we also decided that by pushing the building back into the hill the building would at the same time perform as a retaining wall to eliminate any future possible erosion while giving us the opportunity to sit the building even better into the site.
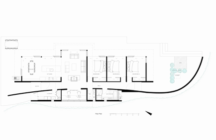
The solution was to stretch the buildings form along the existing contours, to capture the amazing view and takes full advantage of the very good position and north east orientation the result is the plan you can see. The front of the building is occupied with an extensive deck and acts as an extension from the open plan kitchen, dining, living area and the 3 bedrooms, the first to be washed with the sunrise, next to each other. The back of house was dedicated for services, including a bathroom, separate toilet and laundry and at the centre as a visual extension of living room, a studio with nearly full height glass orientated towards the calming native bush slope. Through the building we created an internal street – gallery, with a continual curved timber wall starting at the front of building flowing up from the timber decking one side and finishing as a retaining wall on the other side of the building and curving 15 meters further, creating very intimate private courtyard with outdoor seating, spa and outdoor shower capturing the lovely sunsets at back and the stunning view to the front.
Structurally, the Bach is a single story steel and timber framed structure with skillion roofs, seated at the front on timber piles and at the back on a 1 meter high concrete retaining wall and footing along the entire length. Top quality thermal performances of the building are as always one of imperatives in our designs and we incorporated all this into project.
Sustainability is recognizable through every step working on this project, from quality position and orientation of building, usage of material and local resources, as much as possible nature protection, energy efficiency and allocation for further future improvement (solar panels for hot water and power), etc.
The main and the most dominant material on this project is definitely (together with grey tinted double glazing), Colorsteel metal roofing & wall cladding, by New Zealand Steel, helping to emphasize simplicity and elegant, clear, straight lines. The choice was a logical, easy and cost effective solution for a low maintenance material which performs very well in such a severe sea spray environment.
As per our studio MWA design, the kitchen, laundry, bathroom/toilet joinery and studio fixed furniture where manufactured from marine veneer plywood as main cabinetry material with clear lacquer finish. All exterior aluminum joinery, as we specified, was executed from Fletcher Aluminium Pacific Residential suite and for the best thermal performances we specified double glazing with exterior Viridian grey tinted glass.
Tasmanian oak was the choice for all interior floors with satin clear polyurethane finish to give a feeling of warmth to the interiors but remaining a lightness and natural appearance.
Long curved wall (timber framed) with vertical cedar battens in random order is definitely one of the key features on this project and we try to take exterior , very functional element and use as spine through the interior and complete again outside creating intimate courtyard.
In very simple calm horizontally orientated architectural composition, we decided that the living area deserved to be the accent, so, simple higher roof with about further 1 m height will bring further benefits to overall design such as bringing more light to the centre of the space, provide better cross ventilation, bring more afternoon sun in living/dining/kitchen area and in interior differentiate vertically spaces. With this approach we combined the living area and studio which provided a surprisingly inspirational view towards the back of the property up to the native bush. The fireplace was very strategically positioned (centre of overall building), so as the heart of the composition it is visible from most of the spaces, while the distribution of heat is more efficient and visually it remains one of key accents without compromising extraordinary views. During cold winter days or spring and autumn cooler nights it is real heart of the Bach for memorable stories about diving, fishing, hunting, dreaming, about the past and future.
Off white is predominant interior colour for walls, ceilings and interior doors, remaining the opportunity for clients to bring their personal touch through art work, memorable, family history details etc.
CLIENT: Withheld
TYPE: New holiday home – Bach
SIZE: Total site area 4611 m2, Interior floor area 165 m2, deck – terrace area over 180 m2, covered outdoor area 52 m2 and under Bach storage area 125 m2.
LOCATION: Marlborough Sounds – Bay of Many Coves (Miritu Bay), New Zealand
AUTHOR OF THE PROJECT: Davor Mikulcic
STRUCTURAL ENGINEER: Meyers & Associates Ltd.
PROJECT TEAM: Michael Maddern and Davor Mikulcic
STATUS: Project completed
Design & Documentation period: July 2010 – April 2011 Construction period: April 2011 – July 2012 Photographs: Ivor Earp - Jones
Main Contractor: Tory Channel Contracting Ltd (Mr. Sam Edwards with his team) Project management: By Client Building structure: Foundation timber piles and concrete slab with structural steel and timber Stainless Steel manufacturer/installer: Metric Sheetmetals Ltd - Seaview in Wellington Aluminium Joinery: Tasman Glass - Nelson Roofing & metal wall cladding supply: Steel & Tube New Zealand (Christchurch) Roofing & metal wall cladding installation: Tory Channel Contracting Ltd (Mr. Sam Edwards with his team) Joinery/cabinetry: Cantwell Joinery Ltd, from Blenheim
Main material finishes:
-Foundation is partially Concrete/timber piles and at back reinforced concrete slab with 1 m high concrete block reinforced retaining wall.
-innovative sewer treatment under ESD principles with under house septic tank
-kitchen, bathroom, laundry, toilet cabinetry all in marine plywood finish
-roofing and metal wall cladding is Steel & Tube product Paneldeck – Coloursteel Max 0.55 mm in Thunder grey color, by New Zealand Steel.
-partially timber exterior wall cladding is vertical cedar cladding with dark brown oil stain and stainless steel exposed nails fixing.
-interior walls and ceilings generally completed in plasterboard with high quality spray paint finish
- exterior aluminium joinery with double glazing is by Fletcher Aluminium - Pacific Residential suite and for the best
thermal performances we specified double glazing with exterior Viridian grey tinted glass.
-exterior decking is hardwood Kwila boards 18x90 mm
-eaves are Villaboard panels by James Hardie, plastered and painted
- Main floor structure is combination of steel and timber with final Tasmanian Oak 19 mm final flooring over 20 mm plywood substrate and thermal insulation under.
- Exterior and interior walls are predominantly combination of timber and steel structure
PUROTU – “Beautiful” – Bach (holiday home) in New Zealand's Marlborough Sounds at Bay of Many Coves Quite often at the start of the Design process, after we have had a chance to talk to the client and experience the site for the first time, you ask yourself should we do anything to the existing site, or should the beautiful natural environment remain as it is?
At the Bay of Many Coves, one of the many Marlborough Sound jewels, our clients, when they introduced us to the Project, already had on the site quite an old cottage which was not in very good condition. Overall the site actually combines two individual lots with total area of 4611 m2, with the building platform elevated about 10 meters above the sea level, at the lower level of the hilly site. The lovely positioned cottage was a single storied two bedroom building with a simple weatherboard finish and pitched Colorsteel roof, the dwelling was nicely nestled into the surrounding native bush. The client very much loved it and it was quite a difficult decision we together did to actually remove it from the site and design something new in its place. While it was emotionally a difficult decision it was a logical, more sustainable and cost effective solution, particularly with the knowledge of the remoteness of the site and the logistical requirements of any long term maintenance. Picton and Blenheim are the closest towns and the only practical way to reach the site is actually by boat, barge or by helicopter. Weather permitting it takes about 45 minutes to reach site via boat. So logistically this was obviously one of the main constraints on this project.
Our Wellington and Brisbane studios tradition is at the start of every project to actually spend some time together with the clients and if possible, to do so on the future site. There are many reasons for this and included is to help us better understand the client’s needs, wants, preferences, requirements, any special spots and views and to visualize and experience the site's constraints including access, orientation, context, services, topography and vegetation and any obstructions, or in simple wording the pluses and minuses we have to work with. Design team had the amazing experience of spending one weekend with our clients on the future site in the old cottage and by talking, walking, eating, drinking, fishing, photographing, sketching, measuring we tried to live as the clients do to be as familiar as much possible with the site and to try and understand our clients brief which we together developed even further.
We officially started the Project in July 2010 (Architect Agreement signed), but we started extensive collaboration and preparation, probably few months before that, fine tuning and developing the brief and created a strategy on how to work on this project. The clients brief was relatively simple incorporating : open plan kitchen, dining, living area with fireplace (wood burner), 3 double bedrooms, all with a good orientation and view, separate studio – office area, laundry-changing room after diving with exterior shower, main complete bathroom and a separate toilet. The outdoor space had to be very functional and needed to incorporate the existing spa while this needed to be strategically positioned to capture the view while remaining private, an outdoor shower in the same space was also a requirement. As is a standard requirement in all bach's the provision of extensive decking with outdoor seating all around the dwelling and the ability for the BBQ to be used in a variety of locations depending on the need. Descent storage underneath the front part of the building with simple access was another desire.
From the first initial sketches we did with our clients during our first site visit, it was obvious that we all had the same goal – to nicely settle the building in the existing environment, without competing or contrasting with the surroundings but to simply blend it into the natural environment.
After we decided together with the clients through careful analysis that the existing cottage should be removed from the site we did quite a bit exploration for the possible alternative positions for the future project, confirming that the current position of the existing cottage was the best. We rotated the new building to capture an even better orientation and view; we also decided that by pushing the building back into the hill the building would at the same time perform as a retaining wall to eliminate any future possible erosion while giving us the opportunity to sit the building even better into the site.
The solution was to stretch the buildings form along the existing contours, to capture the amazing view and takes full advantage of the very good position and north east orientation the result is the plan you can see. The front of the building is occupied with an extensive deck and acts as an extension from the open plan kitchen, dining, living area and the 3 bedrooms, the first to be washed with the sunrise, next to each other. The back of house was dedicated for services, including a bathroom, separate toilet and laundry and at the centre as a visual extension of living room, a studio with nearly full height glass orientated towards the calming native bush slope. Through the building we created an internal street – gallery, with a continual curved timber wall starting at the front of building flowing up from the timber decking one side and finishing as a retaining wall on the other side of the building and curving 15 meters further, creating very intimate private courtyard with outdoor seating, spa and outdoor shower capturing the lovely sunsets at back and the stunning view to the front.
Structurally, the Bach is a single story steel and timber framed structure with skillion roofs, seated at the front on timber piles and at the back on a 1 meter high concrete retaining wall and footing along the entire length. Top quality thermal performances of the building are as always one of imperatives in our designs and we incorporated all this into project.
Sustainability is recognizable through every step working on this project, from quality position and orientation of building, usage of material and local resources, as much as possible nature protection, energy efficiency and allocation for further future improvement (solar panels for hot water and power), etc.
The main and the most dominant material on this project is definitely (together with grey tinted double glazing), Colorsteel metal roofing & wall cladding, by New Zealand Steel, helping to emphasize simplicity and elegant, clear, straight lines. The choice was a logical, easy and cost effective solution for a low maintenance material which performs very well in such a severe sea spray environment.
As per our studio MWA design, the kitchen, laundry, bathroom/toilet joinery and studio fixed furniture where manufactured from marine veneer plywood as main cabinetry material with clear lacquer finish. All exterior aluminum joinery, as we specified, was executed from Fletcher Aluminium Pacific Residential suite and for the best thermal performances we specified double glazing with exterior Viridian grey tinted glass.
Tasmanian oak was the choice for all interior floors with satin clear polyurethane finish to give a feeling of warmth to the interiors but remaining a lightness and natural appearance.
Long curved wall (timber framed) with vertical cedar battens in random order is definitely one of the key features on this project and we try to take exterior , very functional element and use as spine through the interior and complete again outside creating intimate courtyard.
In very simple calm horizontally orientated architectural composition, we decided that the living area deserved to be the accent, so, simple higher roof with about further 1 m height will bring further benefits to overall design such as bringing more light to the centre of the space, provide better cross ventilation, bring more afternoon sun in living/dining/kitchen area and in interior differentiate vertically spaces. With this approach we combined the living area and studio which provided a surprisingly inspirational view towards the back of the property up to the native bush. The fireplace was very strategically positioned (centre of overall building), so as the heart of the composition it is visible from most of the spaces, while the distribution of heat is more efficient and visually it remains one of key accents without compromising extraordinary views. During cold winter days or spring and autumn cooler nights it is real heart of the Bach for memorable stories about diving, fishing, hunting, dreaming, about the past and future.
Off white is predominant interior colour for walls, ceilings and interior doors, remaining the opportunity for clients to bring their personal touch through art work, memorable, family history details etc.


